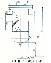
DN |
L |
H |
H1 |
H2 |
Do |
N |
25 |
180 |
280 |
110 |
180 |
Ф76 |
Rc3/4 |
32 |
200 |
285 |
110 |
180 |
Ф76 |
40 |
260 |
340 |
120 |
220 |
Ф108 |
50 |
260 |
340 |
120 |
220 |
Ф108 |
65 |
330 |
400 |
160 |
270 |
Ф133 |
80 |
340 |
460 |
480 |
320 |
Ф159 |
|
DN |
L |
H |
H1 |
H2 |
Do |
N |
100 |
400 |
550 |
200 |
390 |
Ф219 |
Rc3/4
|
125 |
480 |
630 |
260 |
450 |
Ф273 |
150 |
500 |
720 |
310 |
530 |
Ф273 |
200 |
560 |
900 |
390 |
670 |
Ф273 |
250 |
660 |
1070 |
480 |
800 |
Ф426 |
M20×1.5
|
300 |
750 |
1360 |
640 |
1040 |
Ф478 |
|
 |